sporty los angeles

with the upcoming LA Olympics in 2028, the opportunity to create a new housing complex as the Olympic village was explored in designing co-living complexes

situated near SOFI stadium, this project houses 80 residents, starting as part of an Olympic village, to then transition into residential co-living housing

massing process
structure on bottom left of drawing standing amongst other co-living projects designed by peers to make up part of studio-wide village

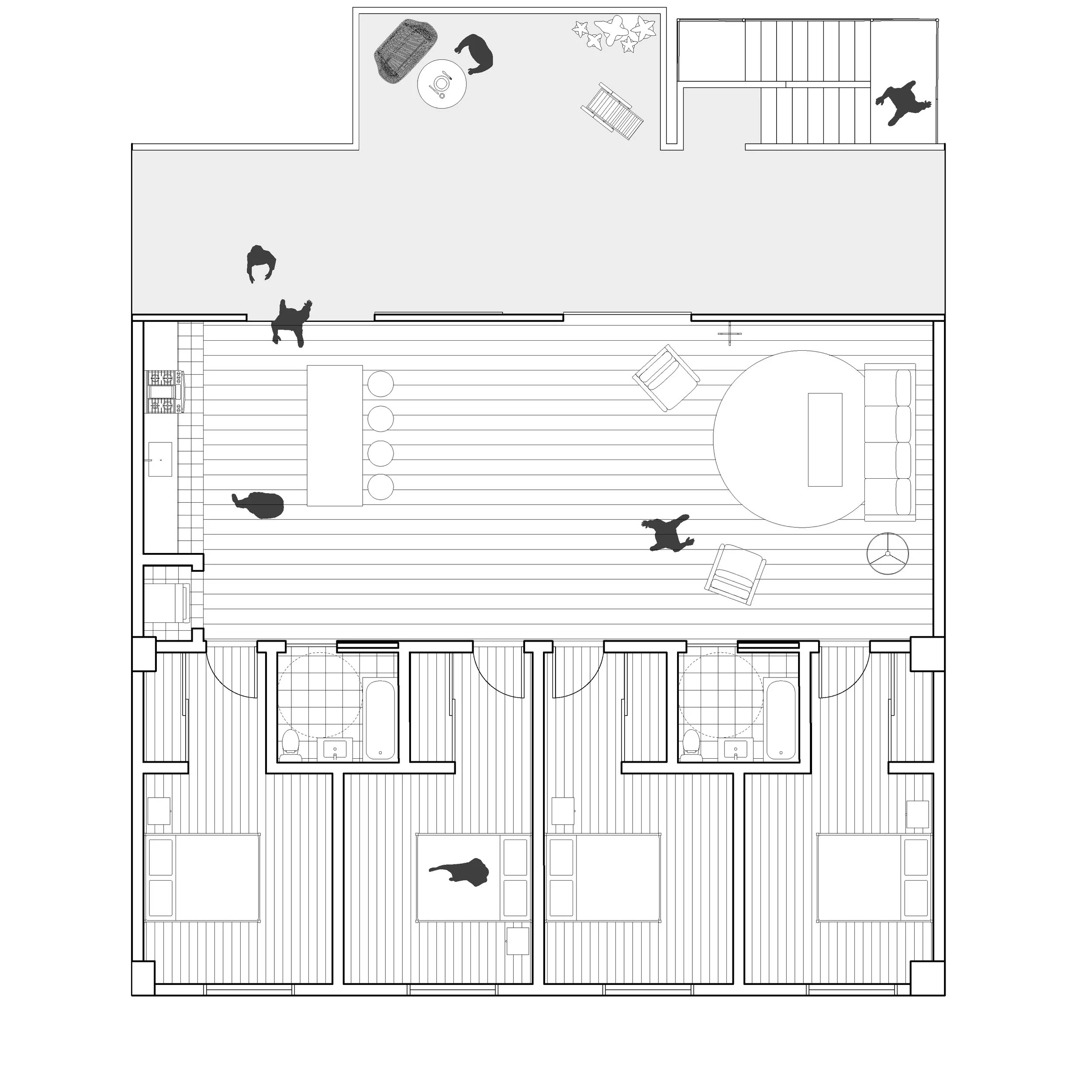
the plan of the floors are programmed through digression of privacy, with the circulation space being the most public in the front, and the private bedrooms in the back being the most private. this created a sort of “striping effect” in plan

three bedroom plan

five bedroom plan

two bedroom plan

four bedroom plan

the front and back elevations show stark contrast from the scramble of systems in the glass front to the simple symmetric windows along the back, pointing to the notion of gaining more order, privacy, and rigidity as moving back in the structure

the glass part on the north side of the building serves as the spot of all circulation and thus socialization, through different elements within

BALCONIES

STAIRS

SLIDING DOORS 

each unit is accessed through sliding doors, on polycarbonate, creating a more flowy circulation between the balcony/hallway space into the unit, leaving what is private or public up to the occupant based on use of door
each unit is given its own respective balcony or "garden" looking out the glass enclosure. size of this balcony correlates to the number of occupants per unit. 
the winding stairway acts as the main circulation for elevating in the structure, becoming a point of socialization and interaction

as seen in section, the ground floor features an elevation change, for the designated work areas for residents. this separates from the retail, and more public, spaces of the ground floor. further, the ground floor features no units, only shared, public spaces for residents of the building and overall community to access.